
La Rochelle (17000)
Local 527 m²
837 900 €
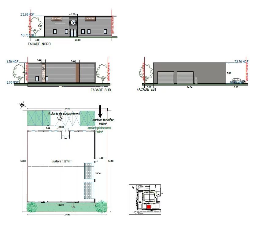
Situé au sein d'une zone économique dynamique de l'agglomération rochelaise, cet ensemble immobilier d'activité développé sur environ 580 m2 constitue une opportunité d'investissement locatif offrant pérennité locative et rendement immédiat. Le bâtiment se compose d'une surface au sol de 388 m2 complétée par 193 m2 de mezzanines, réparties en 4 ateliers distincts actuellement loués à trois entreprises différentes. Chaque cellule dispose de stationnements privatifs, apportant une fonctionnalité recherchée par les utilisateurs. Baux 3/6/9 ssp en place (dont l'un présente une ancienneté datant de 2015 ) générant un loyer annuel global de 51 437 EUR HT et refacturation de la taxe foncière et dépôt de garantie contractuels aux preneurs. Activités en place : réparation outils, stockage professionnel et commerce de vente en gros de mobilier. Rénovation du bâtiment intervenue il y a une dizaine année (toiture, bardage extérieur, isolation murs). Rentabilité brute de 7 %. Prix de vente honoraires compris de 779 100 EUR TTC dont 6% TTC d'honoraires à charge de l'acquéreur. photo non contractuelle
Une affaire d'entreprise ! Les informations sur les risques auxquels ce bien est exposé sont disponibles sur le site Géorisques : 'www.georisques.gouv.fr'.
Pas d'informations disponibles
Remplissez le formulaire ci-dessous, un email sera automatiquement envoyé à l'agence !
Ce site est protégé par reCAPTCHA et les règles de confidentialité et les conditions d'utilisation de Google s'appliquent.