
Saint-Louis (68300)
Appartement
356 000 €
Construction d'une nouvelle résidence de standing à l'architecture contemporaine, avec 21 logements, située dans un cadre exceptionnel
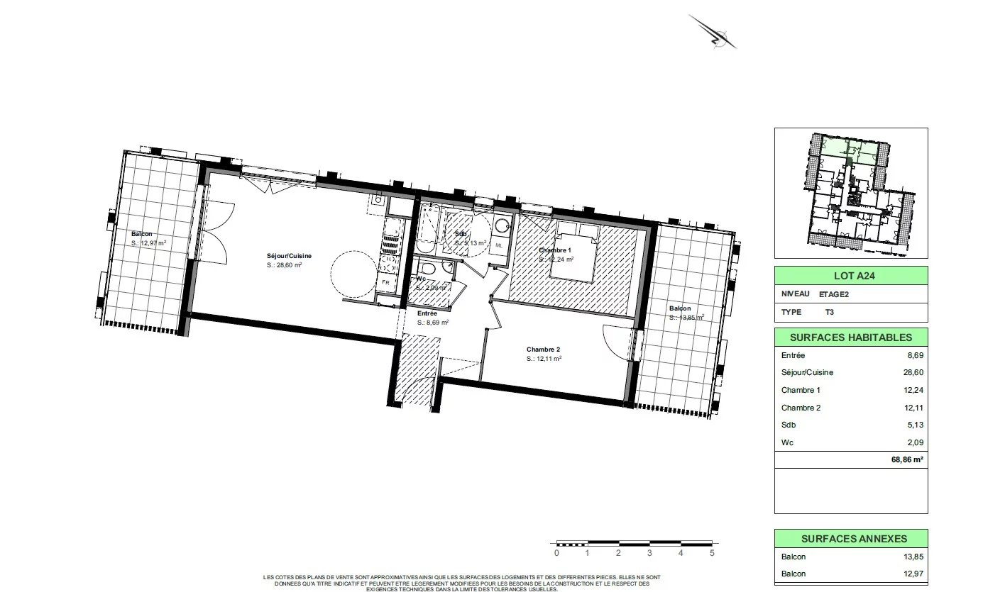
Lot A24
Appartement de type F3 d'une surface de 68,86m², situé au 2ème étage, comprenant :
Une entrée avec armoire murale, 2 chambres dont une ayant accès à un balcon de 13,85m², une salle de bains équipée, WC séparé avec lave-mains
Une cuisine à équiper ouverte sur le salon-séjour donnant accès à un deuxième balcon de 12,97m²
Chauffage individuel au gaz, planchers chauffants
Normes PMR
Porte palière sécurisée, visiophone couleur
Volets roulants électriques, radiateur sèche serviettes
Ascenseur
Déco au choix dans la gamme du Promoteur
Garage à partir de 17 500 euros en supplément
Prix direct Promoteur
Eligible défiscalisation Pinel
Frais de Notaire réduits
Pas d'informations disponibles
Remplissez le formulaire ci-dessous, un email sera automatiquement envoyé à l'agence !
Ce site est protégé par reCAPTCHA et les règles de confidentialité et les conditions d'utilisation de Google s'appliquent.