
Saint-Louis (68300)
Appartement
330 000 €
Programme neuf L'Archipel 3F : votre havre de vie à Saint-Louis
Idéalement situé à 700 mètres de la frontière Suisse sur 2 hectares de nature avec de belles prestations, un aménagement respectueux de l’environnement avec plus de 350 places de stationnement entièrement végétalisés.
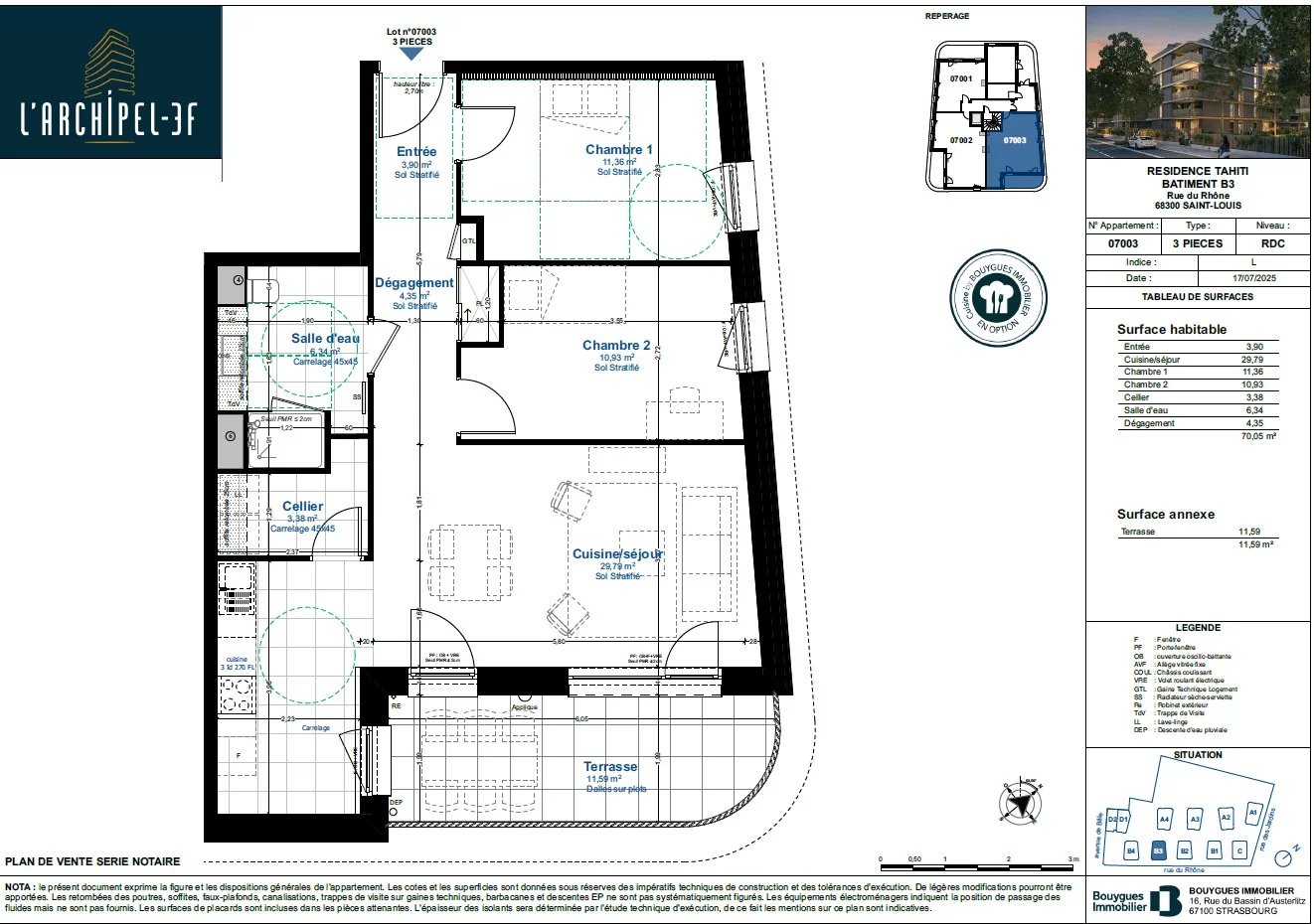
Résidence « TAHITI »
Lot 07003
Appartement 3 pièces d’une superficie de 70.05 m² situé au rez de chaussée avec sa terrasse de 11.59m², comprenant :
Une entrée, un dégagement, une salle d’eau équipée avec WC, une cuisine à équiper ouverte sur la pièce de vie donnant sur la terrasse, un cellier, deux chambres.
Un garage inclus
Parquet contreplaqué dans les pièces principales, couleur et dimension aux choix dans la gamme du promoteur
Carrelage toute hauteur dans les pièces d’eaux, meuble vasque suspendu et paroi de douche inclus aux choix dans la gamme du promoteur.
Murs lissés dans tout le logement
Volets roulant motorisés – Fenêtres ALU – Portes palières anti-effraction
RT 2012 – Chauffage collectif BIOMASSE plancher chauffant –
Pas d'informations disponibles
Remplissez le formulaire ci-dessous, un email sera automatiquement envoyé à l'agence !
Ce site est protégé par reCAPTCHA et les règles de confidentialité et les conditions d'utilisation de Google s'appliquent.