
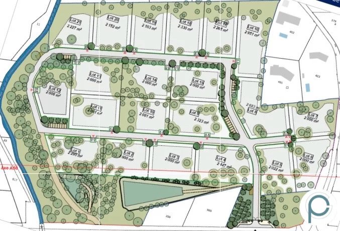
Rare à la vente ! L'agence GP Immobilier vous propose de découvrir un nouveau domaine sécurisé et exceptionnel de 21 terrains à bâtir allant jusqu'à 3000m² idéalement situé à seulement 15 minutes des plages et 3 minutes de la gare de Saint-Cyr-sur-Mer.
Points forts:
- Surfaces des parcelles : de 2000m² à 3000m²
- Lots vendus viabilisés.(Tout à l’égout, EP etc…)
- Surface plancher constructible (SDP) : jusqu'à 221m²
- Liberté totale de choisir votre constructeur.
- Piscine autorisé sur chaque lot
- Possibilité de construire un garage et une annexe jusqu'à 50m², non accolés à la maison.
- Prix à partir de 480 000€
Ne manquez pas cette opportunité rare de construire la maison de vos rêves dans un environnement paisible et recherché.
Pour les visites merci de contacter l’agence GP Immobilier au 07.86.36.44.18
Pas d'informations disponibles
Remplissez le formulaire ci-dessous, un email sera automatiquement envoyé à l'agence !
Ce site est protégé par reCAPTCHA et les règles de confidentialité et les conditions d'utilisation de Google s'appliquent.