
Sainte-Suzanne (97441)
Villa 88.47 m² 4 pièces / 3 chambres
337 600 €
Sainte-Suzanne / Deux-Rives / Maison F4 / 89 m2
Votre conseiller immobilier vous propose en Exclusivité :
A 10 minutes de carrefour Sainte-Suzanne.
Proche de toute commodités : axe principal (N2), écoles, lycées, collèges, garderie, services de santé, loisirs.
Bon état général / 1 salle d’eau par niveau (permet une occupation en rez-de-chaussée)
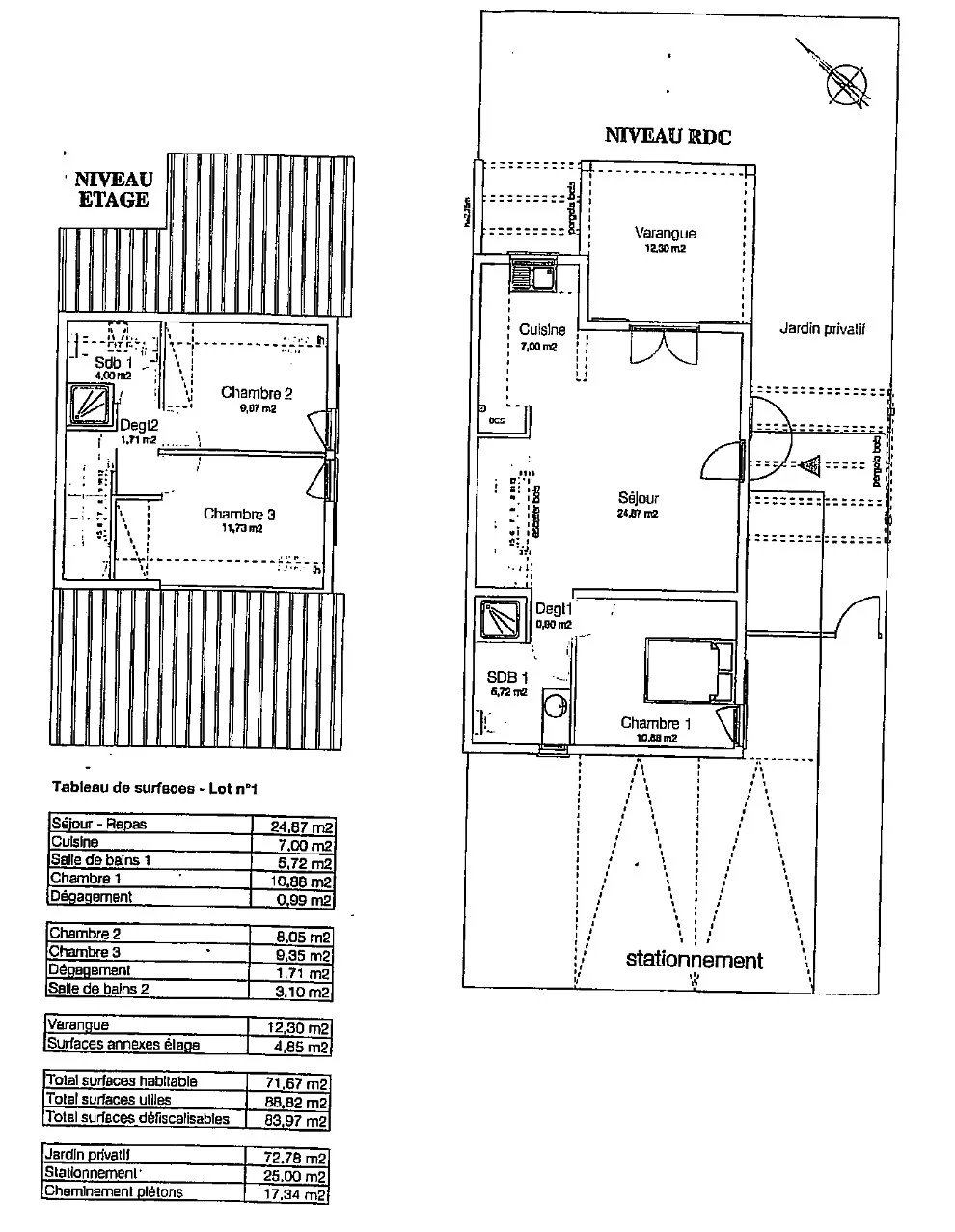
Cette maison R+1, F4 de 89 m2 dont 71.67 m2 habitables composée de :
Au rez-de-chaussée:
-Séjour : 24.87 m2
-Coin cuisine : 7 m
-Salle de bains : 5.72 m2
-Chambre : 10.88m2
-Dégagement : 0.99m2
A l'étage :
-Pièce de vie : 8.05 m2
-Chambre : 9.35 m2
-Dégagement : 1.71 m2
-Salle de Bains 3.10 m2
Varangue : 12.30 m2
Jardin privatif : 72.78 m2
Stationnement privatif : 20 m2 (2 voitures)
Contactez-moi pour réserver votre visite !
Remplissez le formulaire ci-dessous, un email sera automatiquement envoyé à l'agence !
Ce site est protégé par reCAPTCHA et les règles de confidentialité et les conditions d'utilisation de Google s'appliquent.