
Saint-François (97118)
Appartement 82 m² 3 pièces
299 000 €
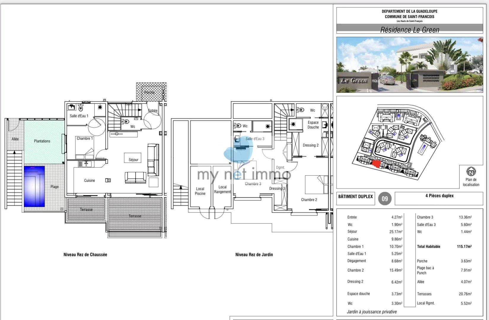
DERNIERS LOTS. En bordure du Golf de Saint François, nous vous proposons d'investir dans l'une des 8 villas mitoyennes T4 sur deux niveaux avec piscine. Cette résidence de grand standing composée de villas T5 et T4 est entièrement sécurisée et clôturée. Cette villa T4 se compose:
- au rez de chaussée : d'une chambre avec salle d'eau, un espace séjour de 25m2 lumineux ouvert sur une très belle cuisine, un wc indépendant, une agréable terrasse de 20m2 avec vue sur le golf et la mer et une petite piscine privative.
- en rez de jardin : 2 belles chambres avec dressing et salle d'eau avec wc donnant sur un jardin privatif face au golf.
2 places de parking attitrées, citerne.
La zone résidentielle des Hauts de Saint François est à deux pas du centre-ville dans un environnement soigné.
Frais de notaire réduits : 2,5%.
Appelez My Net Immo pour plus de précisions et visiter au 0590 200 800
Les informations sur les risques auxquels ce bien est exposé sont disponibles sur le site Géorisques : www.georisques.gouv.fr
Cette annonce vous est proposée par Mlle. Salomé VASSEUR - - NoRSAC: , Enregistré à de
Pas d'informations disponibles
Remplissez le formulaire ci-dessous, un email sera automatiquement envoyé à l'agence !
Ce site est protégé par reCAPTCHA et les règles de confidentialité et les conditions d'utilisation de Google s'appliquent.