
Maison Trousseau vous propose:
Située le quartier de Bel-Air, cette Hotel particulier de 270 m² habitables, construite en 1952, est une véritable perle rare sur le marché. Alliant charme de l’ancien, volumes généreux et un potentiel incroyable à exploiter.
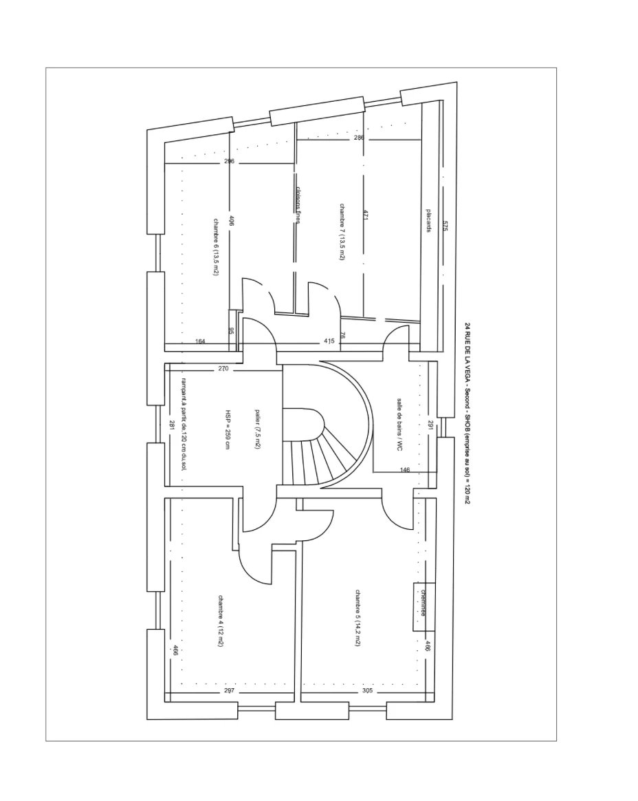
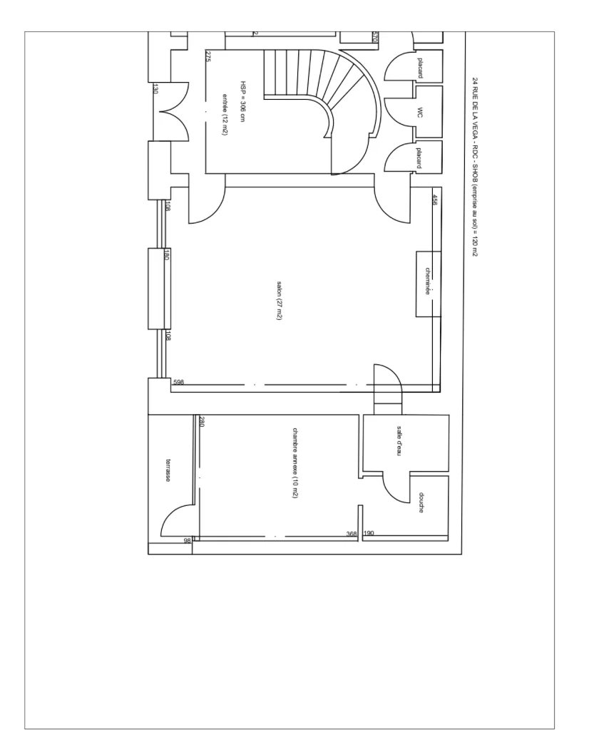
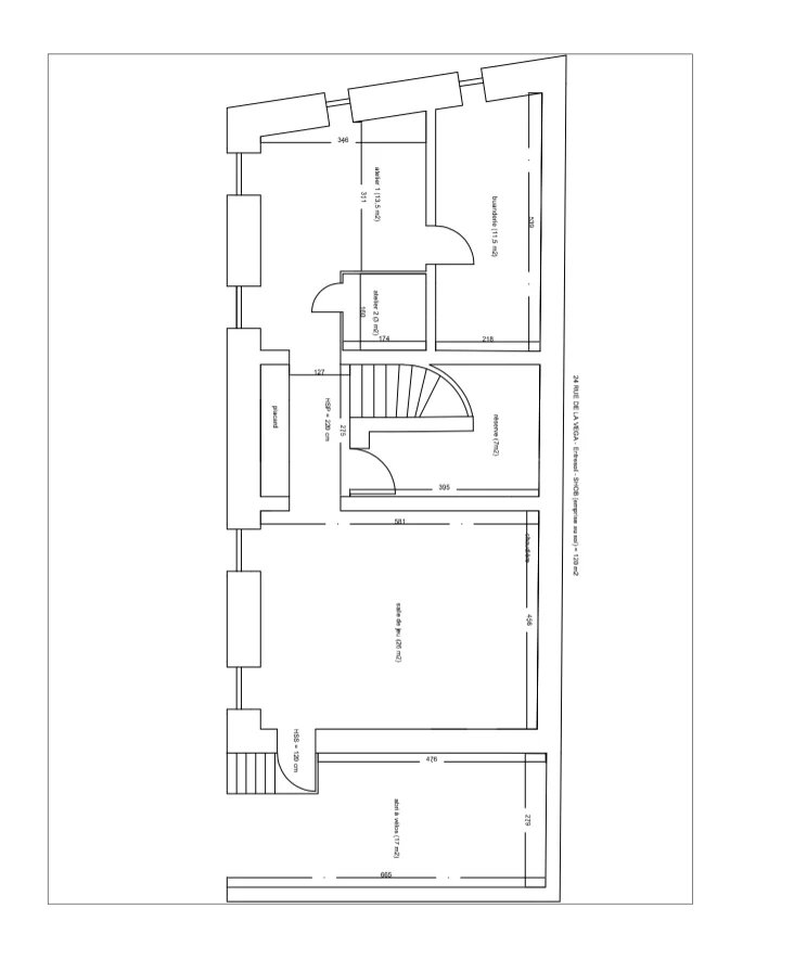
Dès l’entrée, le caractère du lieu se révèle à travers ses espaces lumineux et sa belle hauteur sous plafond. Au rez-de-chaussée surélevé, une entrée mène à une salle à manger avec cuisine ouverte, un séjour spacieux, une chambre et un WC. Au premier étage, trois grandes chambres, une salle de bain avec WC et un vaste dressing offrent une configuration idéale. Le dernier niveau propose trois autres chambres et une seconde salle de bain avec WC.
À l’extérieur, un magnifique jardin de 135 m² constitue un atout rare en plein Paris, offrant calme et intimité. Un espace dédié permet le stationnement de deux véhicules. Une grande cave vient compléter ce bien d’exception.
Nichée dans un cadre paisible tout en restant à proximité immédiate des commerces, écoles et transports, cette maison bénéficie d’un emplacement privilégié.
Une maison pleine de promesses à la fois spacieuse, lumineuse. Des travaux sont à prévoir pour lui redonner tout son éclat et en faire une résidence unique, à l’image de vos envies.
Pas d'informations disponibles
Remplissez le formulaire ci-dessous, un email sera automatiquement envoyé à l'agence !
Ce site est protégé par reCAPTCHA et les règles de confidentialité et les conditions d'utilisation de Google s'appliquent.