
Grange Loft de 200 m² – Piscine, Spa, Jardin Ouest – À 15 minutes de Strasbourg
Grange de 1940, entièrement restaurée en 2010, pour devenir un loft spectaculaire avec mezzanine et une pièce de vie traversante Est–Ouest de 91 m².
L’ensemble ouvre directement sur un jardin plein Ouest, sans vis-à-vis, avec vue dégagée sur les champs.
Composition du bien
Intérieur
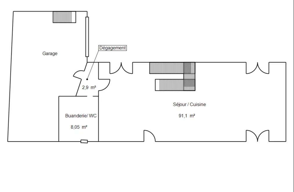
Surface : 200 m² environ
3 chambres, chacune équipée de sa propre climatisation
Possibilité d’une 4ème chambre sur la mezzanine (devis disponible)
Suite parentale de 20 m² avec clim
Chauffage au sol
Grande pièce à vivre ouverte sur jardin
Cuisine contemporaine
Buanderie / rangements
Extérieur
Piscine, spa, cuisine d’été (barbecue + four à tarte flambée)
Jardin plein Ouest, vue champs, aucun vis-à-vis
Entrée privée avec portail automatique
Garage 2 à 3 voitures
Domotique complète – tout se pilote à distance
La maison est entièrement connectée :
Chauffage au sol
Climatisation
Caméras
Portail
Garage
Alarme
Lumières et intensité
Domotique haut niveau = confort + sécurité + économies.
Consommation maîtrisée
Pour un bien de ce volume :
Env. 2 000 €/an d’électricité
+ 500 € d’économie grâce aux panneaux solaires (estimation)
C’est très rare pour 200 m² + piscine + spa.
Localisation – Osthoffen
Un cadre de vie premium : calme absolu, campagne chic, tout en étant à 15 minutes de Strasbourg.
Accès rapide : écoles, commerces, axes principaux.
À qui s’adresse cette maison ?
Couple exigeant cherchant de l’espace
Couple sans enfant qui veut un bien atypique et haut de gamme
Couple avec un ado (idéal avec la mezzanine aménageable)
Pas d'informations disponibles
Remplissez le formulaire ci-dessous, un email sera automatiquement envoyé à l'agence !
Ce site est protégé par reCAPTCHA et les règles de confidentialité et les conditions d'utilisation de Google s'appliquent.