
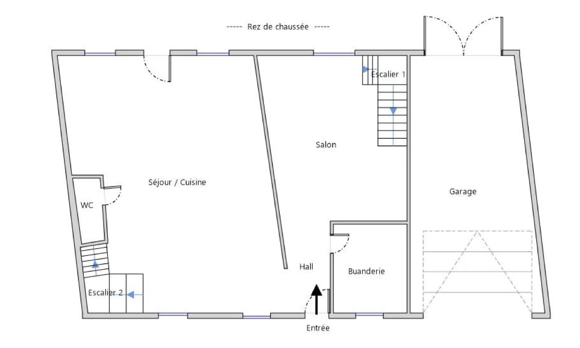
Idéalement située en plein cœur du bourg, chambre intérieur pour cette agréable maison d’environ 105 m² : cuisine aménagée ouverte sur séjour avec cheminée insert et salon intimiste donnant sur jardin, buanderie et toilettes.
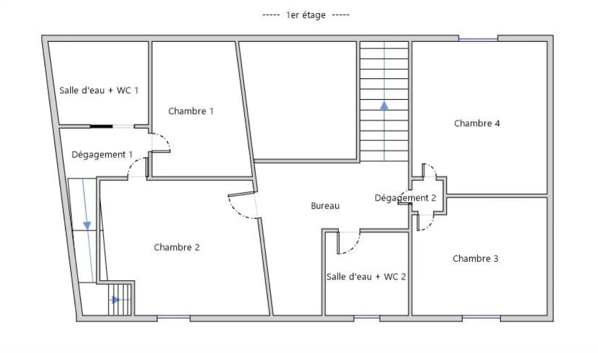
À l’étage : mezzanine, 3 chambres, bureau (ou quatrième chambre), 2 salles d’eau avec WC.
Garage, grande dépendance. Jardin entièrement clos avec puits, le tout sur une parcelle de 400 m².
Pas d'informations disponibles
Remplissez le formulaire ci-dessous, un email sera automatiquement envoyé à l'agence !
Ce site est protégé par reCAPTCHA et les règles de confidentialité et les conditions d'utilisation de Google s'appliquent.