
Loisin (74140)
Maison 108.82 m² 5 pièces / 4 chambres
553 300 €
OFFRE DU MOMENT : FRAIS DE NOTAIRES OFFERTS !!
IMMO3CONCEPT spécialiste du neuf vous propose :
A Loisin; charmante commune située à 10 minutes de la frontière suisse à proximité des plages du lac Léman, découvrez cette belle maison neuve en duplex de 108,82 m², nichée dans un environnement calme, verdoyant et résidentiel.
Des prestations modernes et un confort optimal :
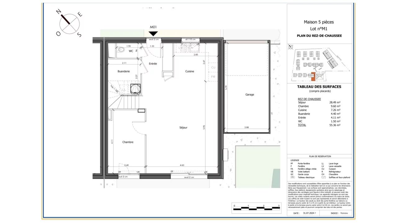
Le rez-de-chaussée se compose d'une entrée avec placard intégré, d'un spacieux séjour/cuisine de 35,75 m², lumineux et ouvert sur une Terrasse de 11 m² prolongé par un jardin privatif de 159 m², et d'un espace extérieur à l'avant de la maison de 72,95 m², d'une chambre ; d'une buanderie et d'un Wc séparé.
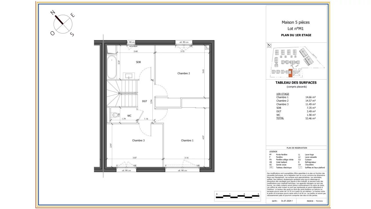
A l'étage ; vous trouverez trois chambres, dont deux avec rangements, une salle de bains, et un WC indépendant.
Grand garage attenant et possibilité d'acquérir des parkings supplémentaires.
(Photos non contractuelles)
À découvrir rapidement !
D'autres lots sont disponibles sur ce programme.
IMMO3CONCEPT, spécialiste de l'immobilier neuf dans la région, vous propose plus de 1000 biens à la vente dans le Genevois, le Chablais, le Pays Rochois, le Pays de Gex et la Vallée du Giffre.
Contactez-nous dès aujourd'hui ou consultez notre site internet pour découvrir l'ensemble de nos programmes neufs et planifier votre visite.
Copropriété de 66 lots - dont 29 lots habitation. (Pas de procédure en cours).
Pas d'informations disponibles
Remplissez le formulaire ci-dessous, un email sera automatiquement envoyé à l'agence !
Ce site est protégé par reCAPTCHA et les règles de confidentialité et les conditions d'utilisation de Google s'appliquent.