
Sur une parcelle de 1 397 m² sans vis-à-vis, ROSE est située à Lambres-lez-Douai, commune prisée aux portes de Douai.
Cette maison individuelle de 211 m² habitables séduit par sa qualité de construction et son potentiel.
Construite avec de beaux matériaux et rénovée avec soin sur ses espaces principaux, elle offre :
- 1 vaste rez-de-chaussée avec la possibilité de créer une vie de plain-pied
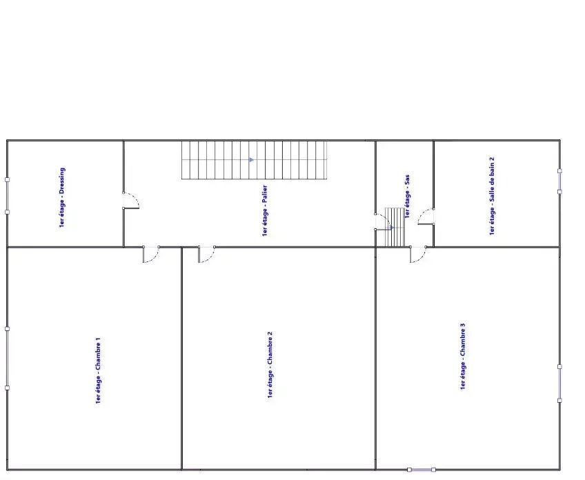
- 3 chambres à l'étage à rafraîchir, ainsi que la salle de bain
- Combles aménageables
- 1 dépendance attenante permettant du stockage ou la création d’un nouvel espace de vie.
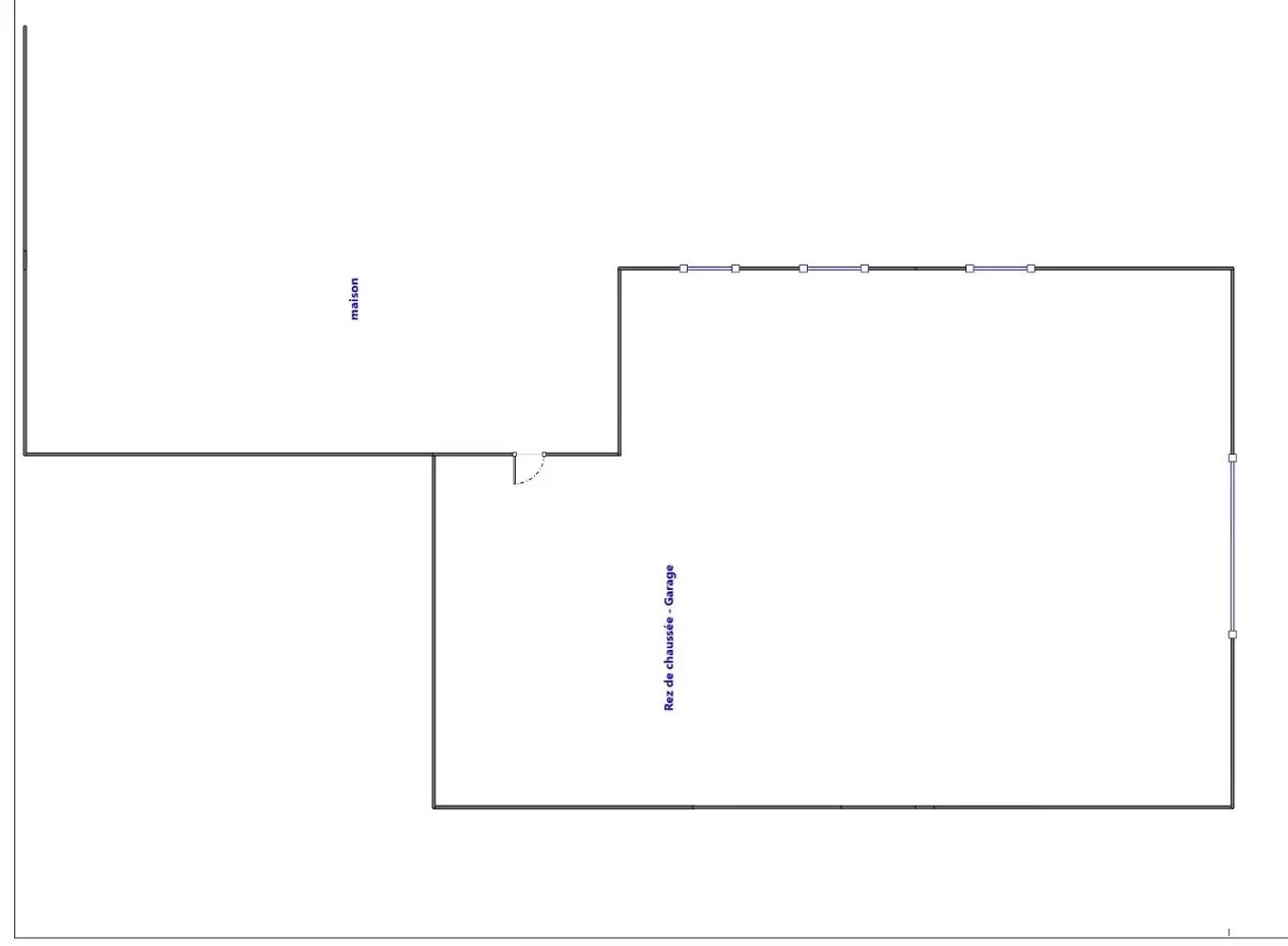
-1 garage-atelier traversant de 85 m², très lumineux grâce à ses ouvertures en pied de mur, idéal pour un artisan, un projet créatif ou du stockage
- 1 terrain arboré avec une serre déjà en place
Le DPE classé C garantit un bon confort thermique et une performance énergétique rare sur ce type de bien.
Une maison aux volumes généreux, dans un secteur recherché, avec un fort potentiel d’aménagement.
- Proximité immédiate de Douai, des axes routiers, des écoles et des commerces.
Pas d'informations disponibles
Remplissez le formulaire ci-dessous, un email sera automatiquement envoyé à l'agence !
Ce site est protégé par reCAPTCHA et les règles de confidentialité et les conditions d'utilisation de Google s'appliquent.