
Castres (81100)
Maison de ville 96.07 m² 4 pièces / 3 chambres
213 000 €
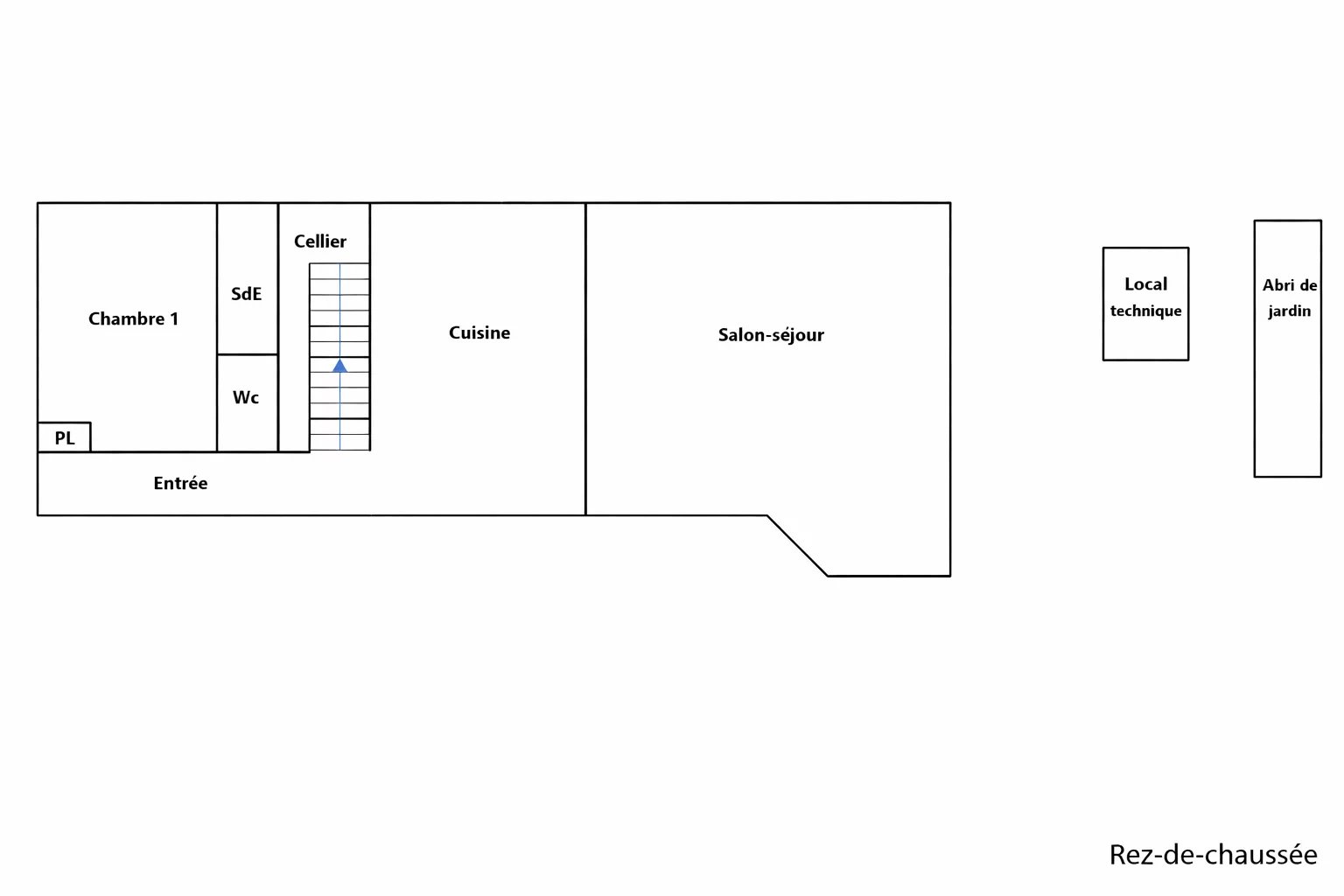
PACFA IMMOBILIER vous propose en exclusivité, au coeur du quartier de l'Albinque à Castres, cette jolie maison de ville en pierre rénovée. Idéale pour un premier achat, elle combine charme, confort et fonctionnalité, à proximité immédiate des commerces, des écoles et des transports.
Avec ses 108m² habitables et son jardin arboré de 430m² clos avec piscine, cette maison offre un cadre de vie chaleureux et pratique.
Vous apprécierez sa pièce de vie spacieuse et lumineuse de 46m² avec cuisine ouvert donnant sur une grande terrasse couverte et l'espace piscine.
A l'extérieur, tout est pensé pour la détente et la convivialité : terrasse, piscine, espace barbecue, jardin intime et une annexe indépendante de 15m² avec un point d'eau et toilettes, idéale pour un bureau, un atelier ou un studio.
Remplissez le formulaire ci-dessous, un email sera automatiquement envoyé à l'agence !
Ce site est protégé par reCAPTCHA et les règles de confidentialité et les conditions d'utilisation de Google s'appliquent.