
PACFA immobilier vous présente cette élégante propriété de 286 m² nichée dans un écrin de verdure dans un parc arboré de 1.1 hectares.
Cette ancienne bâtisse en pierre et ses dépendances offrent un magnifique cadre de vie calme et authentique.
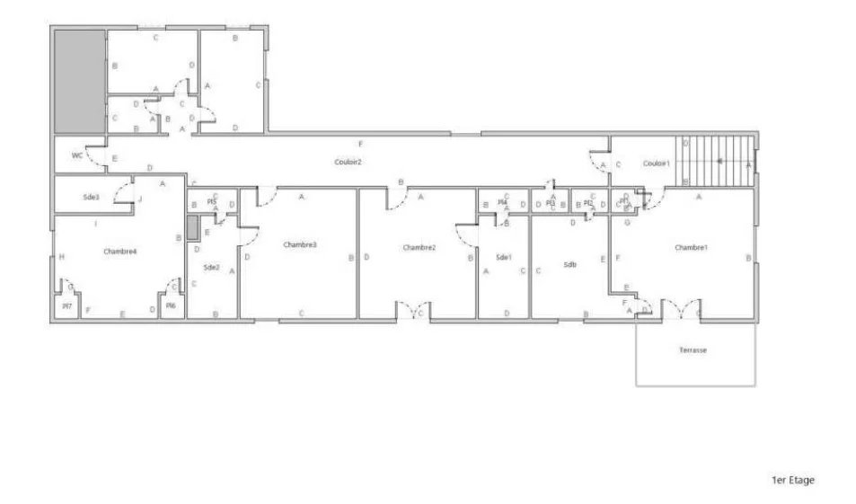
La maison principale s'étend sur deux niveaux et propose onze pièces aux volumes généreux dont six chambres, quatre salles d'eau, une salle de bain ainsi qu'une belle salle de billard.
À l'extérieur, la propriété se prolonge avec une piscine et pool house et une agréable terrasse couverte, l'ensemble s'intégrant harmonieusement dans le paysage.
Plusieurs dépendances complètent ce bien d'exception : une habitation supplémentaire idéale pour accueillir famille ou invités ainsi qu'une annexe aménagée avec sauna et salle de repos.
Cette propriété située aux portes du Sidobre, à seulement 5 minutes de Castres, s'adresse aux amateurs de nature et de belles pierres et souhaitant un lieu paisible avec l'attrait de la vie dans le Sud de la France.
Visite virtuelle disponible sur demande.
Pas d'informations disponibles
Remplissez le formulaire ci-dessous, un email sera automatiquement envoyé à l'agence !
Ce site est protégé par reCAPTCHA et les règles de confidentialité et les conditions d'utilisation de Google s'appliquent.