
Bordeaux (33000)
Maison 180 m² 6 pièces / 4 chambres
749 000 €
BORDEAUX BASTIDE
En partenariat avec l'agence DELEGLISE PROPERTIES et l'agence LALANNE IMMOBILIER, L'agence expansion rive droite spécialiste de la vente d'échoppe sur le quartier de Bordeaux Bastide vous propose une échoppe double familiale de 260 m² sur Bordeaux Bastide.
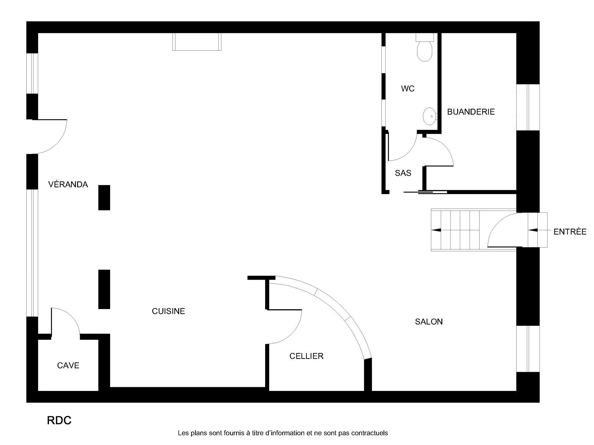
Cette maison se compose en rez de jardin d'une entrée une pièce de vie de 90 m² avec séjour, salle à manger cuisine et véranda donnant sur le jardin de 190 m².
Un cellier, une buanderie et un WC séparé complètent ce premier niveau.
Au premier étage, un palier dessert la chambre parentale avec dressing et salle d'eau privative. Deux chambres supplémentaires sur ce palier également avec salle d'eau privative.
Au second niveau 2 chambres supplémentaires avec toilette séparé et salle d'eau commune.
De très beaux volumes pour cette échoppe familiale. Aucun travaux à prévoir, rénovation de qualité.
L'extérieur donne accès a une autre rue, possibilité de rentrer plusieurs véhicules. L'extérieur possède une terrasse en bois, un carport et un jacuzzi.
Pas d'informations disponibles
Remplissez le formulaire ci-dessous, un email sera automatiquement envoyé à l'agence !
Ce site est protégé par reCAPTCHA et les règles de confidentialité et les conditions d'utilisation de Google s'appliquent.