
AVEIZIEUX, 42330, Exclusivité,
ATELIER DE PASSEMENTERIE A TRANSFORMER EN HABITATION.
120 m² habitable possible + garage existant de 21 m².
Terrain 224 m².
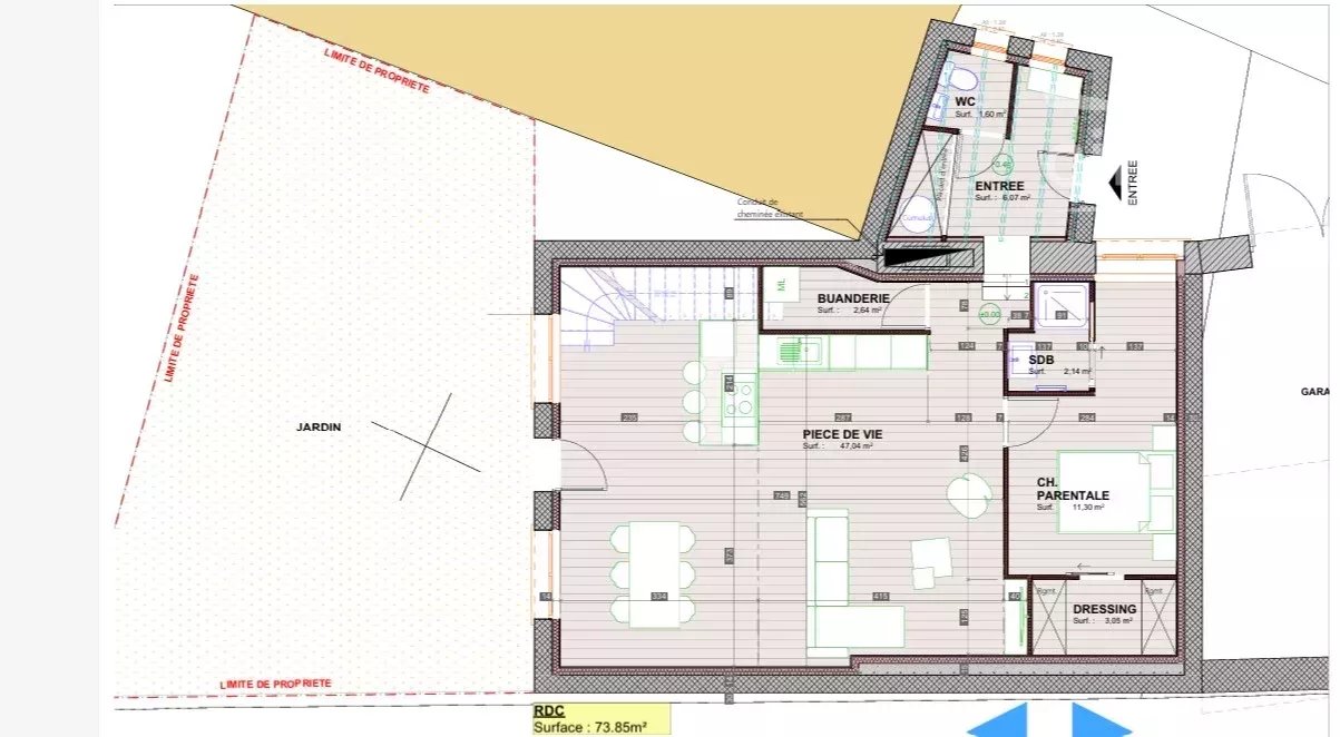
Projet d'habitation sur deux niveaux (VOIR PLAN) :
- RDC : cuisine ouverte sur séjour donnant accès sur un terrain de 90 m², suite parentale, buanderie, wc séparé, entrée.
- ETAGE : 2 chambres, salle d'eau, bureau.
Estimation travaux tous corps d'état réalisé par un maitre d'œuvre, disponible sur demande.
Dispositif financier possible et cumulables selon ressource:
- Prêt à taux zéro : jusqu'à 50 % du montant total de l'opération. (acquisition, travaux + frais de notaires)
- ECO prêt à taux zéro : 50 000 € maximum.
Projet libre, les plans et vues 3D visibles sur l'annonce sont des propositions d'aménagement réalisées par des professionnels.
Pas d'informations disponibles
Remplissez le formulaire ci-dessous, un email sera automatiquement envoyé à l'agence !
Ce site est protégé par reCAPTCHA et les règles de confidentialité et les conditions d'utilisation de Google s'appliquent.