
A VENDRE - Le Cabinet Habilis vous présente à la location un dépôt de 950 m2 environ, situé à SAINTE-MARIE dans la zone d'activité LA MARE.
Ce local bénéficie d'un emplacement stratégique, implanté dans la zone industrielle et proche de toutes les commodités essentielles.
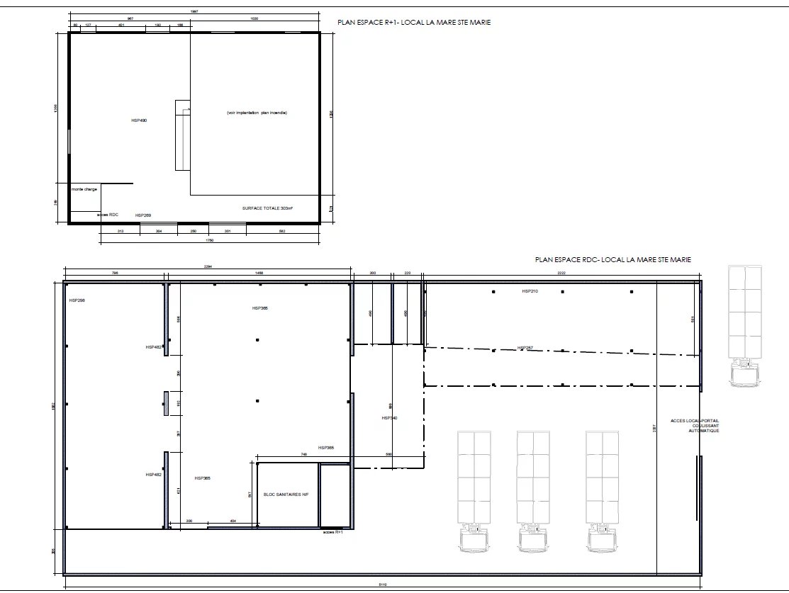
Il se répartit sur deux niveaux, se composant comme suit :
Au rez-de-chaussée, vous bénéficierez d'un espace principal de 650 m2 environ, incluant une zone sanitaire, parfaitement adapté pour accueillir un espace de réception ou showroom.
À l'étage, une seconde salle de 300 m2 environ, offre des possibilités supplémentaires, que ce soit pour du stockage, des bureaux ou une extension de l'activité.
Le local dispose également d'un parking réservé aux livraisons.
Faites l'acquisition de ce bien au prix de 1 278 000 EUR HAI. Les honoraires sont à la charge du vendeur.
Vous pouvez consulter notre grille tarifaire en vigueur à l'adresse suivante :https://www.cabinet-habilis.com/nos-honoraires.pdf
Les informations sur les risques auxquels ce bien est exposé sont disponibles sur le site géorisques : www.georisques.gouv.fr.
Pour un accompagnement complet sur votre étude de faisabilité du projet, projection de financement, avantages fiscaux et autres demandes, notre équipe pourra vous recevoir sur rendez-vous.
Contactez votre agence immobilière, sous le numéro de carte professionnelle no : CPI 9742 2017 000 017 264 délivrée par : CCI de la Réunion au 0692 87 00 63 ou au 02 62 10 58 24 ou par mail sur nr@cabinet-habilis.com ou sur conseil@cabinet-habilis.com
Annonce rédigée sous la responsabilité éditoriale de l'agent commercial. www.cabinet-habilis.com
Pas d'informations disponibles
Remplissez le formulaire ci-dessous, un email sera automatiquement envoyé à l'agence !
Ce site est protégé par reCAPTCHA et les règles de confidentialité et les conditions d'utilisation de Google s'appliquent.