
Saint-Herblain (44800)
Appartement 48.89 m² 2 pièces / 1 chambre
172 800 €
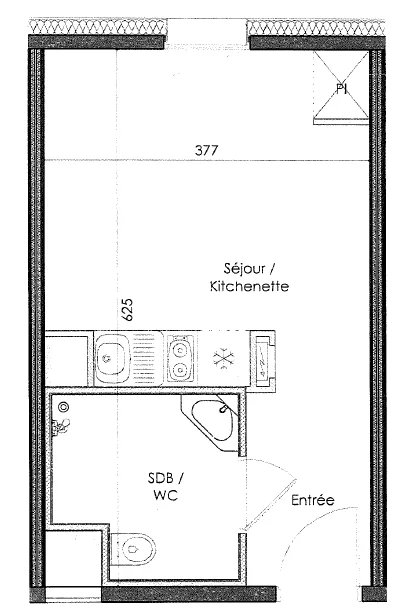
Situé au 4ᵉ étage d’une résidence de 2013, ce studio comprend une entrée, une pièce de vie avec kitchenette et placard, ainsi qu’une salle de bain avec WC.
Actuellement loué dans le cadre d’un bail commercial pour locaux meublés, il génère un loyer de 340,88 € TTC par mois.
Vendu actuellement occupé.
Uniquement pour investisseurs !
Pas d'informations disponibles
Remplissez le formulaire ci-dessous, un email sera automatiquement envoyé à l'agence !
Ce site est protégé par reCAPTCHA et les règles de confidentialité et les conditions d'utilisation de Google s'appliquent.