
Paris 5ème (75005)
Appartement 24 m² 2 pièces
359 000 €
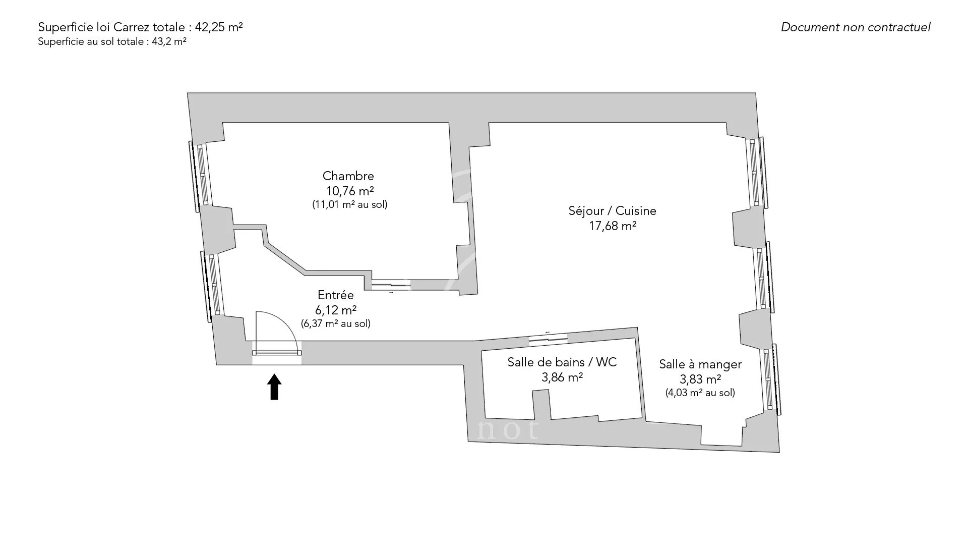
Au cœur du 5e arrondissement, rue du Pot de Fer, à deux pas de la rue Mouffetard et du Panthéon, se trouve cet appartement de 42,25 m² loi Carrez situé au deuxième étage d’un immeuble du XVIIe siècle. Entièrement rénové par une Designer d’Espaces issue de l’école Strate, il allie le charme de l’ancien et le confort du contemporain, avec un soin particulier apporté à chaque détail.
Traversant, l’appartement se compose d’un séjour avec cuisine et salle à manger ouvrant sur une jolie cour arborée et dégagée, baignée de lumière et de ciel. La chambre, dotée de nombreux rangements, offre un espace paisible et élégant. La salle d’eau, moderne et raffinée, comprend des équipements haut de gamme.
La rénovation, achevée fin 2024, inclut une isolation complète : murs coffrés, isolation entre les poutres, sous-plancher acoustique et triple vitrage côté rue. L’appartement bénéficie d’un chauffage électrique individuel, d’un sèche-serviettes Antrax et d’une nouvelle porte blindée.
Les finitions reflètent une exigence rare : éclairages signés Tom Dixon, Vibia, Flos et Artemide, assises Moustache, et système audio Yamaha dans chaque pièce. Le reste du mobilier a été entièrement projeté et réalisé sur mesure, afin d’optimiser chaque mètre carré tout en créant une atmosphère unique. Les interrupteurs permettent trois ambiances lumineuses distinctes, pour une expérience à la fois chaleureuse et contemporaine.
Le ravalement de la cour et du rez-de-chaussée de l’immeuble a été réalisé fin 2024. Un espace vélo est disponible dans la cour, et le mobilier est inclus dans le prix.
Chargée d’histoire, la rue du Pot de Fer évoque le vieux Paris, ses ruelles pavées et son atmosphère bohème où se mêlent mémoire des artistes, effervescence étudiante et charme du Quartier Latin. Cet appartement, rare et romantique, offre un cadre de vie privilégié au cœur de l’un des plus beaux quartiers de Paris.
Remplissez le formulaire ci-dessous, un email sera automatiquement envoyé à l'agence !
Ce site est protégé par reCAPTCHA et les règles de confidentialité et les conditions d'utilisation de Google s'appliquent.