
Paris 18ème (75018)
Bureau 65 m² 4 pièces / 2 chambres
760 000 €
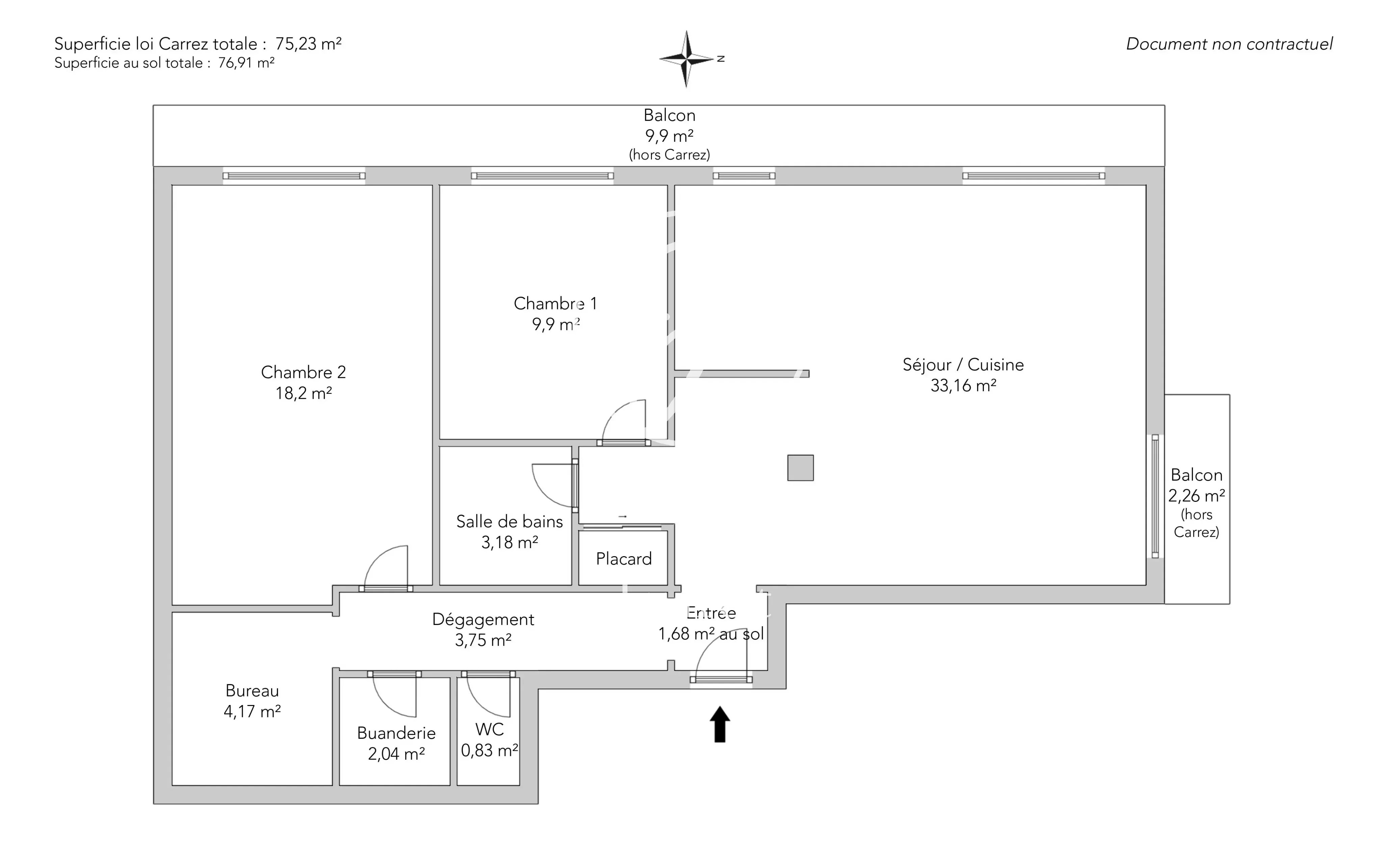
Rue Belliard, au 3e étage par ascenseur d'un immeuble des années 60 avec gardienne, appartement de 75,23m² loi Carrez (76,91m² au sol) avec deux balcons filants.
Son plan parfaitement optimisé comprend: une entrée avec rangements, un séjour d'angle donnant sur balcons avec vue arborée, une cuisine ouverte sur le séjour, deux belles chambres ayant elles aussi accès au balcon, un bureau, une salle de bains, une buanderie ainsi qu'un toilette séparé.
EXCLUSIVITÉ.
Remplissez le formulaire ci-dessous, un email sera automatiquement envoyé à l'agence !
Ce site est protégé par reCAPTCHA et les règles de confidentialité et les conditions d'utilisation de Google s'appliquent.