
PARIS 18 ? Métros LA FOURCHE (L13) - Place de Clichy (L2/L13) - Villa Des Moulins - Rue Pierre Ginier.
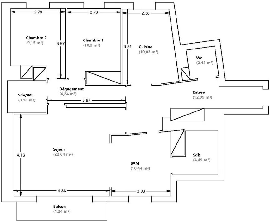
Au coeur d'une rue paisible, à deux pas des commerces, transports, et de toutes commodités, découvrez ce bel appartement familial de 4 pièces traversant de 88,92 m² loi Carrez, situé au 1er étage sur 5 dans un immeuble récent de standing (2004) sécurisé avec ascenseur.
Calme et lumineux, il est composé d'une entrée, de WC séparés, d'un agréable séjour-salle à manger de 33 m² avec parquet ouvrant par porte-fenêtres sur un balcon côté jardin de 4.24 m² exposé sud-ouest, d'une cuisine indépendante, aménagée, de deux chambres (possibilité 3 chambres) d'une salle de bains, ainsi qu' une salle d'eau avec WC.
Une cave et un emplacement de parking en sous-sol complètent ce bien.
DPE C (133) / A (4)
Pour tous renseignements, contacter Armando SANTOS au 06 68 33 52 37. (5.00 % d'honoraires TTC à la charge de l'acquéreur.)
Copropriété de 97 lots (Pas de procédure en cours).
Charges annuelles : 2592.00 euros. Armando SANTOS (EI) Agent Commercial - Numéro RSAC : 751875055 - PARIS.
Pas d'informations disponibles
Remplissez le formulaire ci-dessous, un email sera automatiquement envoyé à l'agence !
Ce site est protégé par reCAPTCHA et les règles de confidentialité et les conditions d'utilisation de Google s'appliquent.