
Paris 17ème (75017)
Appartement 174 m² 6 pièces
1 790 000 €
À quelques pas du cimetière de Montmartre, idéalement située entre Guy Môquet et La Fourche.
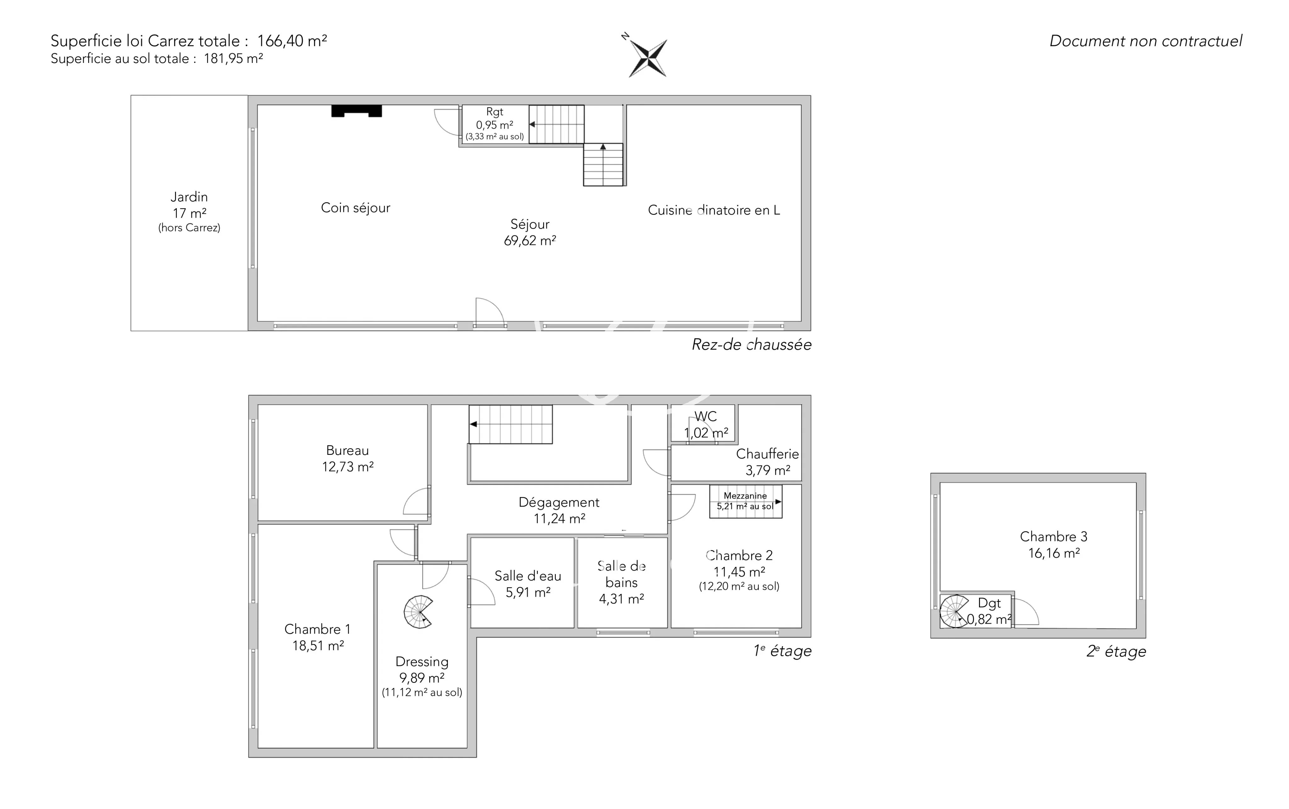
Cette maison confidentielle de 166,40m² loi Carrez (181,95m² au sol) se niche au fond d’une charmante impasse privée et sécurisée
Dès l’entrée, les volumes séduisent: un vaste séjour avec cheminée s’ouvre sur une terrasse privative de 17m², véritable prolongement du salon. Une cuisine dînatoire entièrement aménagée et équipée complète ce niveau de réception.
L’étage accueille un palier distribuant trois chambres, un dressing, deux salles de bains, une buanderie et des toilettes séparées.
Au dernier niveau, une quatrième chambre, idéale en suite indépendante ou espace invités. Possibilité de créer une cinquième chambre.
Calme absolu et luminosité remarquable caractérisent ce lieu de vie, sublimé par de nombreuses verrières esprit atelier laissant entrer une lumière omniprésente.
Une cave à vin aménagée, accessible directement depuis le séjour, complète ce bien rare au charme singulier, au cœur d’une adresse recherchée.
EXCLUSIVITÉ.
Remplissez le formulaire ci-dessous, un email sera automatiquement envoyé à l'agence !
Ce site est protégé par reCAPTCHA et les règles de confidentialité et les conditions d'utilisation de Google s'appliquent.