
Paris 16ème (75016)
Appartement 215 m² 7 pièces / 4 chambres
3 388 000 €
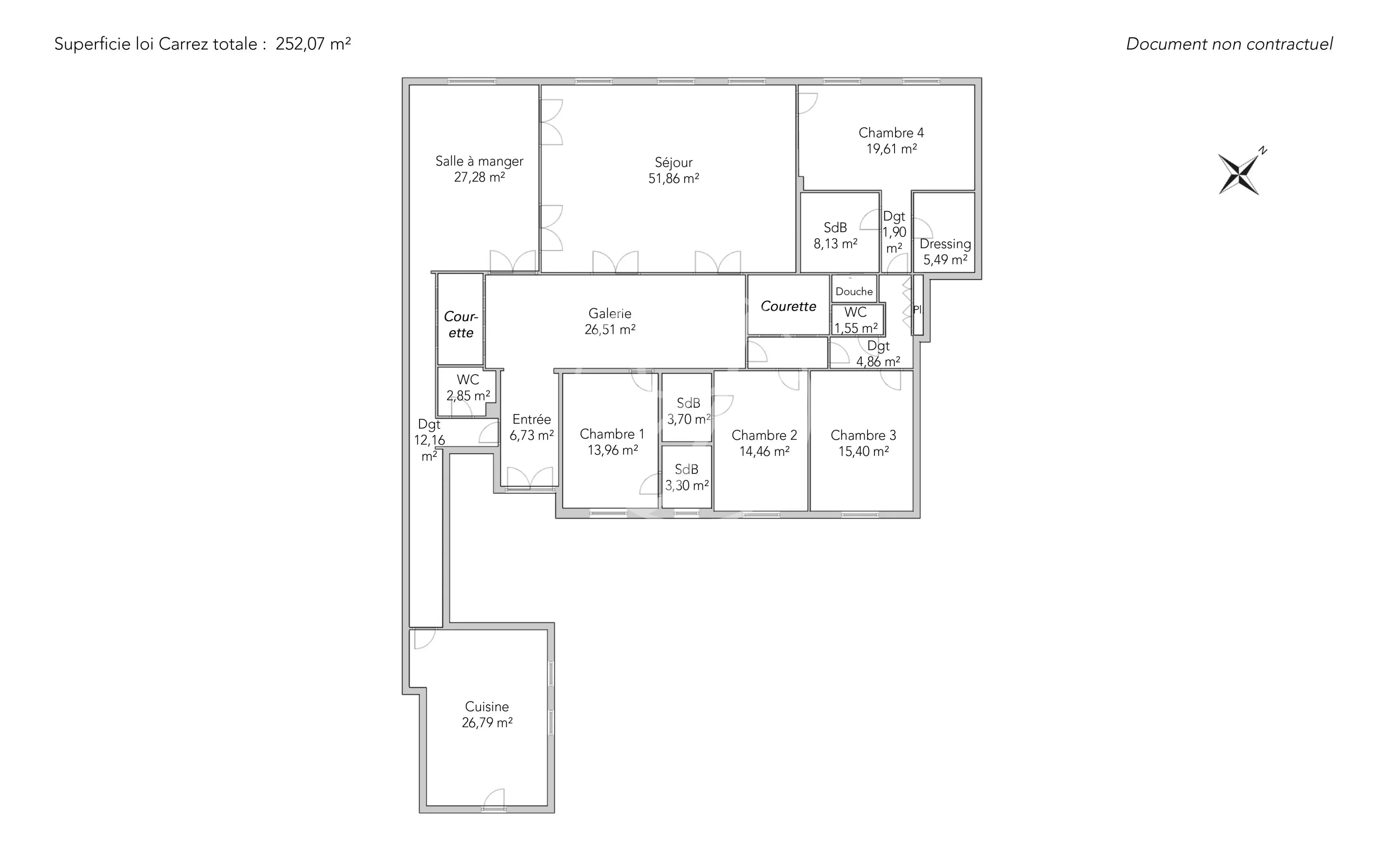
Au quatrième étage par ascenseur d’un élégant immeuble en pierre de taille de 1905, cet appartement familial et de réception de 252,07m² loi Carrez développe de magnifiques volumes dans un esprit haussmannien préservé.
Dès l’entrée, une majestueuse galerie distribue les espaces et crée une perspective remarquable. Le séjour, de plus de 50m², bénéficie d’une vue dégagée et verdoyante, offrant une luminosité constante. Moulures, cheminées, marbre d'origine aux décors soignés et hauteur sous plafond soulignent le caractère authentique de l’ensemble. Une salle à manger attenante prolonge les réceptions. La cuisine indépendante de 26,79m² permet un véritable espace dînatoire, confortable et fonctionnel.
L’espace nuit, parfaitement séparé, comprend trois premières chambres au calme sur cour dont deux avec une salle de douche privative et une suite parentale avec salle de bains et dressing. Les circulations sont fluides et la distribution particulièrement équilibrée. Deux toilettes invités compètent le plan.
Traversant, lumineux et doté de beaux volumes, cet appartement séduit par son cachet d’origine, son adresse recherchée et ses vues ouvertes sur un environnement arboré.
Un bien de caractère au cœur du 16e arrondissement, à proximité immédiate des commerces, des transports et des établissements scolaires réputés.
L'appartement est climatisé.
Une chambre de service et deux caves complètent cette offre.
Remplissez le formulaire ci-dessous, un email sera automatiquement envoyé à l'agence !
Ce site est protégé par reCAPTCHA et les règles de confidentialité et les conditions d'utilisation de Google s'appliquent.