
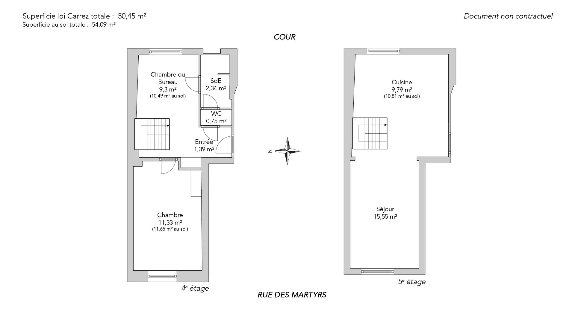
Situé au cœur du quartier très prisé des Abbesses, dans la partie haute de la rue des Martyrs, ce charmant appartement en duplex occupe les deux derniers étages d’un immeuble ancien (accès au 4ème étage). Rénové avec goût et avec de belles prestations en 2022, il offre une superficie de 50,45m² loi Carrez (54,09m² au sol) Traversant est ouest et baigné de lumière, le plan optimisé comporte au quatrième étage : un espace chambre bureau modulable et une chambre chaleureuse avec rangements intégrés, une salle de douche et des toilettes séparées.
À l’étage supérieur, le séjour lumineux s’ouvre sur une cuisine américaine entièrement équipée, créant un espace de vie à la fois cosy et fonctionnel.
À proximité immédiate des transports, des commerces de bouche et des écoles, cet appartement allie charme et emplacement recherché. EXCLUSIVITÉ.
Remplissez le formulaire ci-dessous, un email sera automatiquement envoyé à l'agence !
Ce site est protégé par reCAPTCHA et les règles de confidentialité et les conditions d'utilisation de Google s'appliquent.