
Nice (06000)
Appartement 54 m² 2 pièces / 1 chambre
220 000 €
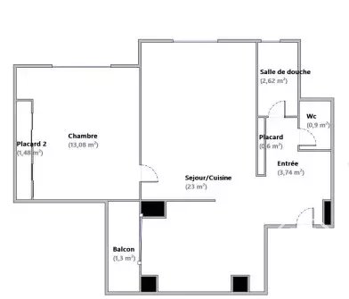
Venez découvrir cet élégant appartement de 45,42 m² situé dans le quartier prisé de Saint-Barthélemy, à proximité de tous les commerces, et à 5 mins à pieds de l'arrêt de tramway. Très bien agencé, avec une spacieuse pièce à vivre et une grande chambre, cet appartement dispose d'un balcon au calme, coté cours.
Une cave complète ce bien.
Visite Virtuelle : https://nodalview.com/s/0bQ-9LECj0g9bC-heZBaUZ
Nombre de lot: NC,
Aucune procédure à notre connaissance,
Retrouvez les informations concernant les éventuels risques naturels sur Géorisques.
Pas d'informations disponibles
Remplissez le formulaire ci-dessous, un email sera automatiquement envoyé à l'agence !
Ce site est protégé par reCAPTCHA et les règles de confidentialité et les conditions d'utilisation de Google s'appliquent.