
Asnières-sur-Seine (92600)
Appartement 50.32 m² 2 pièces / 1 chambre
284 000 €
Asnières-sur-Seine – Rue des Bourguignons
Au cœur du centre d’Asnières-sur-Seine, Victorine Immobilier vous présente ce charmant appartement situé au 2ᵉ et dernier étage d’un petit immeuble de la rue des Bourguignons, à proximité immédiate des commerces, des écoles. La gare SNCF la plus proche (2 minutes à pied) est celle de Bois Colombes, permettant de rejoindre Paris Saint-Lazare en 8 minutes.
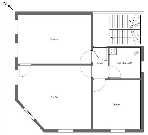
Caractéristiques du bien
Superficie loi Carrez : 44,00 m²
• Entrée : 1,70 m²
• Salle d’eau avec WC : 3,70 m²
• Cuisine : 8,12 m²
• Salon : 17,40 m²
• Chambre : 13,08 m²
L’appartement, lumineux et bien distribué, dispose de nombreuses ouvertures et d’une porte d’entrée blindée.
Les fenêtres en double vitrage PVC assurent une bonne isolation phonique et thermique.
Le chauffage est individuel au gaz, la chaudière ayant été remplacée en 2023.
Les parties communes de l’immeuble seront intégralement rénovées, travaux déjà votés et pris en charge par le vendeur.
Travaux récents (2023)
• Travaux de peinture et isolation des combles
• Installation d’une VMC
• Remplacement de la chaudière gaz
• Pose d’une porte blindée
Conditions locatives
L’appartement est vendu loué avec un bail vide se terminant le 10 juin 2027.
• Loyer mensuel : 887,26 €
• Charges : 40,00 €
• Loyer total : 927,26 € / mois
(Locataire en place depuis 2024)
Informations techniques
• DPE : E (272 kWh/m²/an)
• GES : E (56 kg CO₂/m²/an)
• Consommation énergétique estimée : 1 150 à 1 610 €/an
• Absence de termites (rapport du 17/10/2024)
• Présence possible d’amiante dans un conduit non visible (diagnostic sans risque identifié)
• Taxe foncière : 466 €
Transports à proximité
• Gare SNCF Bois Colombes (ligne L – Paris Saint-Lazare à 8 min)
• Métro ligne 13 – Gabriel Péri à 10 min à pied
• Bus : lignes 175, 140, 276, 165
• Accès rapide à la Défense et à Paris par les quais de Seine
Pas de procédure en cours.
Prix de vente
263 000 € FAI (honoraires à la charge du vendeur)
Pour organiser une visite, je suis joignable au +33 (0)6 50 50 03 06
Mentions légales
Victorine Immobilier – Vente • Location • Viager
Carte professionnelle n° CPI 6901 2018 000 031 034 – CCI de Lyon
Mail : amandine.fayet@victorine-immobilier.com
www.victorine-immobilier.com
Pas d'informations disponibles
Remplissez le formulaire ci-dessous, un email sera automatiquement envoyé à l'agence !
Ce site est protégé par reCAPTCHA et les règles de confidentialité et les conditions d'utilisation de Google s'appliquent.