
Arâches-la-Frasse (74300)
Appartement 84.9 m² 4 pièces
869 000 €RÉF : SM8536REG04MàJ : 29/04/2026
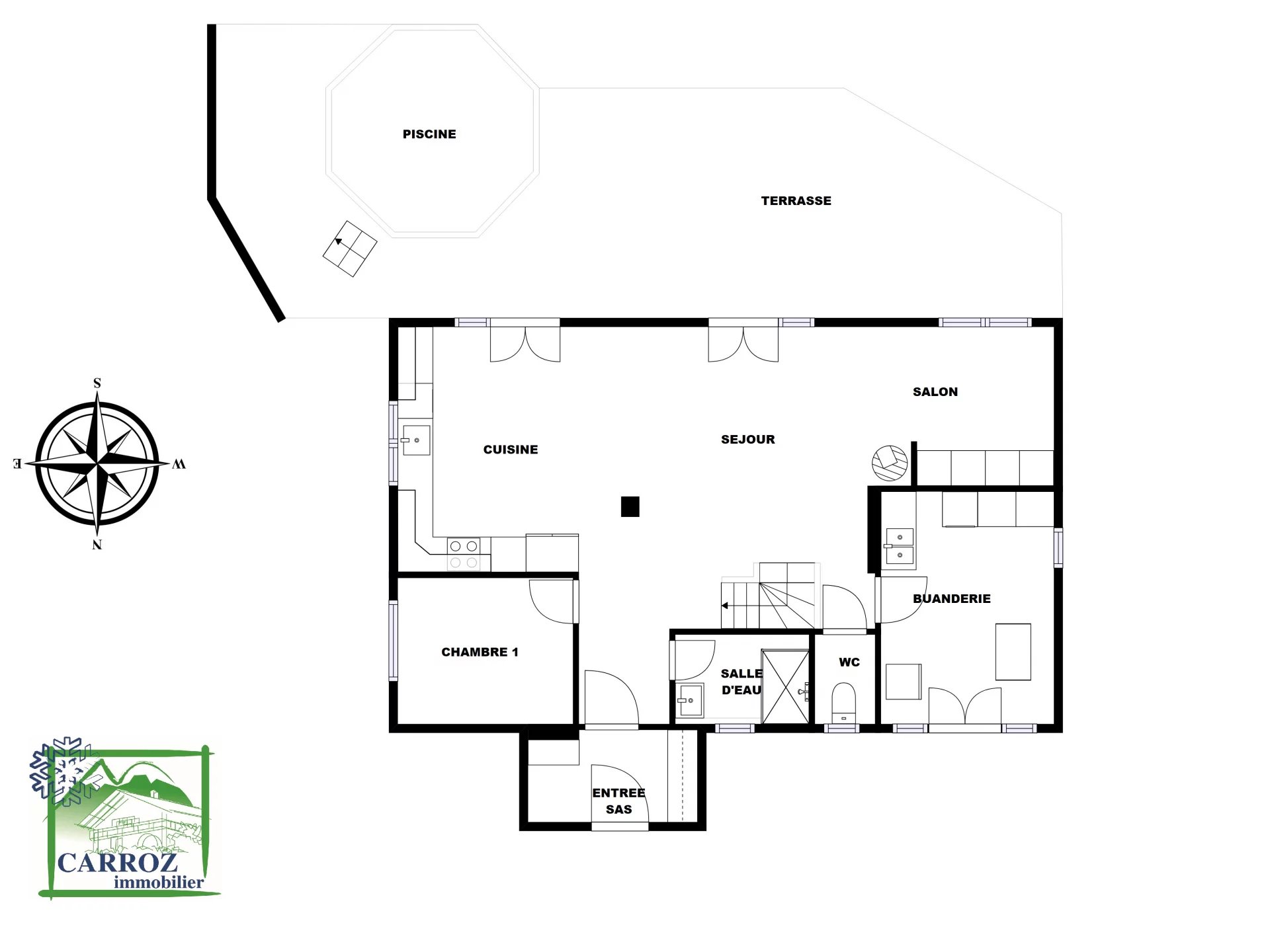
Maison au coeur du village de la Frasse.
avec un terrain plat cette maison est composée en rez-de-chaussée d'une entrée , une chambre , salle d'eau et toilettes séparés, buanderie et un grand séjour cuisine donnant sur une terrasse avec piscine hors sol.
A l'étage 3 chambres une grande salle de bains avec bains et douche, un toilette séparé.
En annexe un grand garage double et un appartement en sous pente composé d'un séjour cuisine une chambre et salle d'eau
Pas d'informations disponibles
Remplissez le formulaire ci-dessous, un email sera automatiquement envoyé à l'agence !
Ce site est protégé par reCAPTCHA et les règles de confidentialité et les conditions d'utilisation de Google s'appliquent.