
Annecy (74000)
Appartement 70 m² 3 pièces / 2 chambres
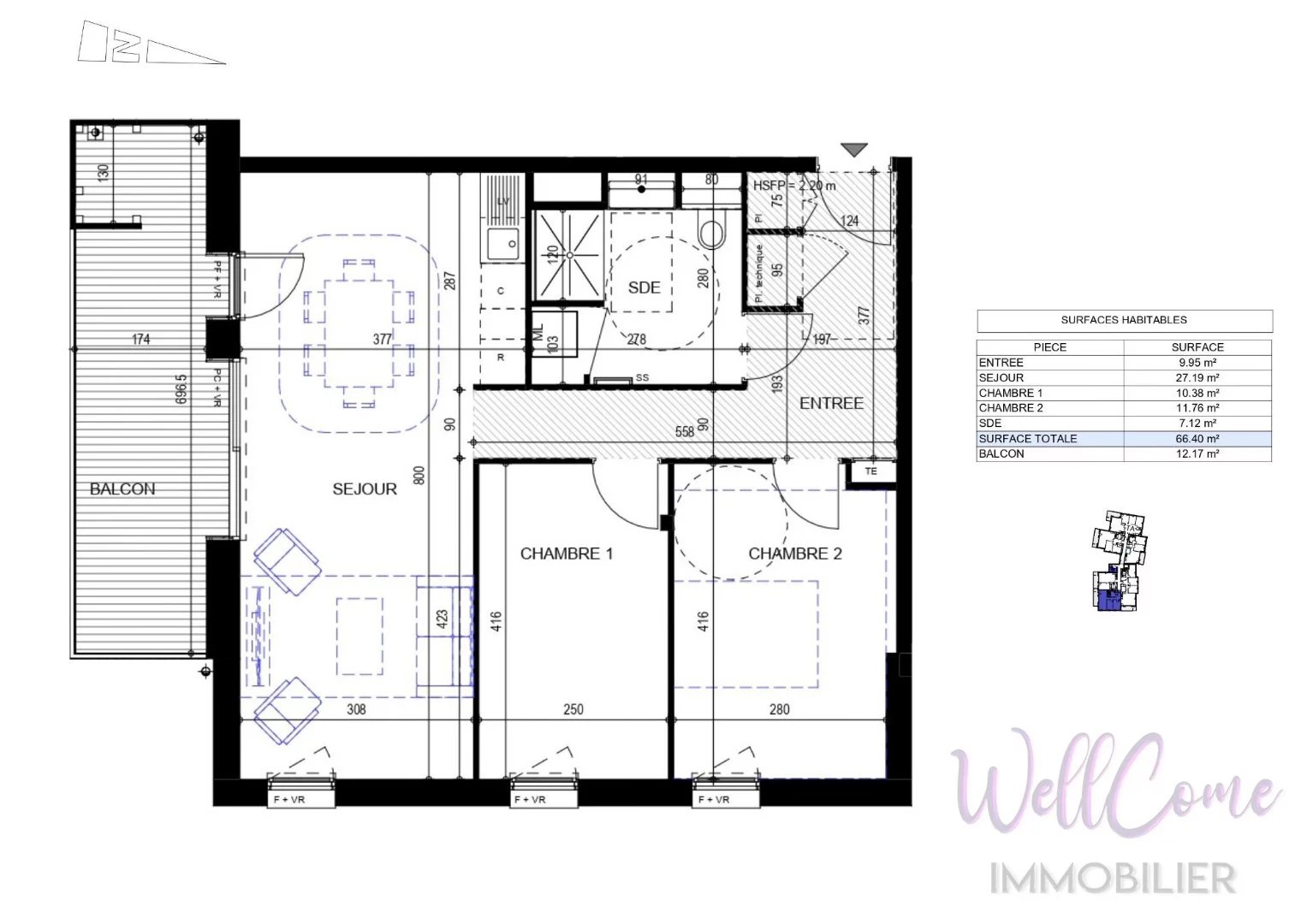
395 000 €Appartement neuf T3 de 66m² (SUD) Etage 2/3 – Box inclus – Annecy À Annecy, secteur résidentiel à l'ange de la Route des Creuses et de l'Avenue de Vert-Bois à seulement 14 min du lac d’Annecy à vélo - Découvrez cet appartement neuf 3 pièces de 66,40 m² orienté Sud, situé au 2ème étage sur 3 de la résidence neuve « Les Camarines ». Cet ensemble à taille humaine de 4 bâtiments, du T1 au T5, s'insère dans un environnement paysager composé de différentes strates arborées. Un cadre de vie idyllique ! Agencement de l’appartement T3 : -Entrée/Dégagement : 9,95m² -Séjour/Cuisine : 27,19m² avec accès au balcon de 12,17m² orienté Sud -2 Chambres : 10,38m² et 11,76m² -Salle d'eau/ WC : 7,12m² Vendu avec un garage en sous-sol sécurisé. Présence de locaux vélos sécurisés Côté prestations : menuiseries en double vitrage bois avec volets roulants motorisés, baies double vitrage en PVC ou Aluminium. Chauffage, rafraîchissement et eau chaude sanitaire via une Pompe à Chaleur air/eau collective. D’autres appartements T3 sont disponibles dans la résidence (de 64 m² à 77m², de 403 000 € à 497 000 €). Pour plus d’informations et pour réserver votre futur appartement, contactez votre agence WellCome Immobilier ! Visite virtuelle sur demande Livraison : 4ème trimestre 2027. Frais de notaire réduits. Certifications : RE2020. Éligible : Accession Libre. LMNP non géré, Zone fiscale A. Jean Brun
Remplissez le formulaire ci-dessous, un email sera automatiquement envoyé à l'agence !
Ce site est protégé par reCAPTCHA et les règles de confidentialité et les conditions d'utilisation de Google s'appliquent.