
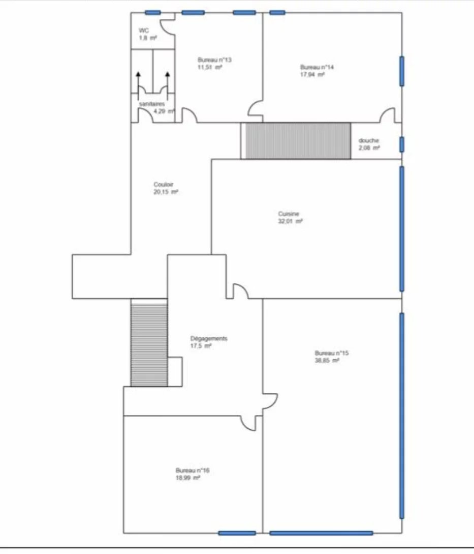
bureaux de 480m2 disponibles à la location.
Avec une entrée PMR 2 issues de secours bureaux divisibles et redistribuantes.
Nombreux points d'eau
Rafraichissement à prévoir
Conditions de la location:
- Loyer mensuel HC : 8 000€
- Provision mensuelle pour charges 150€
- TVA
- Paiement du loyer mensuellement et indexation annuelle
- Dépôt de garantie 3 mois
Pas d'informations disponibles
Pas d'informations disponibles
Remplissez le formulaire ci-dessous, un email sera automatiquement envoyé à l'agence !
Ce site est protégé par reCAPTCHA et les règles de confidentialité et les conditions d'utilisation de Google s'appliquent.