
Amiens (80000)
Appartement 31 m² 1 pièce
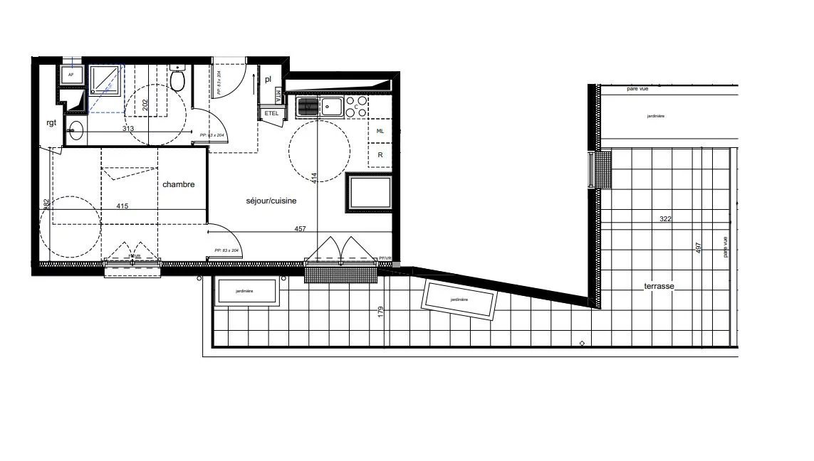
710 € / Mois (Charges comprises)Ref 653G: Appartement neuf de type 2 situé rue Valery Giscard d'Estaing à Amiens sud, Résidence Symbioz, logement au 4ème étage avec ascenseur comprenant une entrée avec dressing, un séjour donnant accès à une grande terrasse de 31m2, cuisine meublée et équipée (plaque de cuisson, four et hotte), une chambre avec un placard, salle d'eau avec douche, meuble vasque et wc. Place de parking privative couverte et sécurisée. LOYER 555.76EUR + provisions 100EUR (eau froide et chaude, chauffage, communs et TOM) - superficie 38m2 - LOGEMENT SOUS DISPOSITIF PINEL, attention plafonnement des ressources voir tableau zone B1 - LIBRE AU 25 JUIN - ref 653G
Remplissez le formulaire ci-dessous, un email sera automatiquement envoyé à l'agence !
Ce site est protégé par reCAPTCHA et les règles de confidentialité et les conditions d'utilisation de Google s'appliquent.